Häpönniementie 7, Pietola, Uusikaupunki
Kodikas ja tilava koti rauhallisessa ympäristössä!
Uudenkaupungin Pietolassa sijaitseva kiinteistö tarjoaa oivan mahdollisuuden asua rauhallisessa ympäristössä, . Tämä talo kutsuu viihtymään ja tarjoaa tilaa toteuttaa omia sisustusunelmia. Kahdessa kerroksessa sijaitsevat tilat mahdollistavat monenlaisia asumisen ratkaisuja ja pihapiiri tarjoaa tilaa esimerkiksi lasten leikeille.
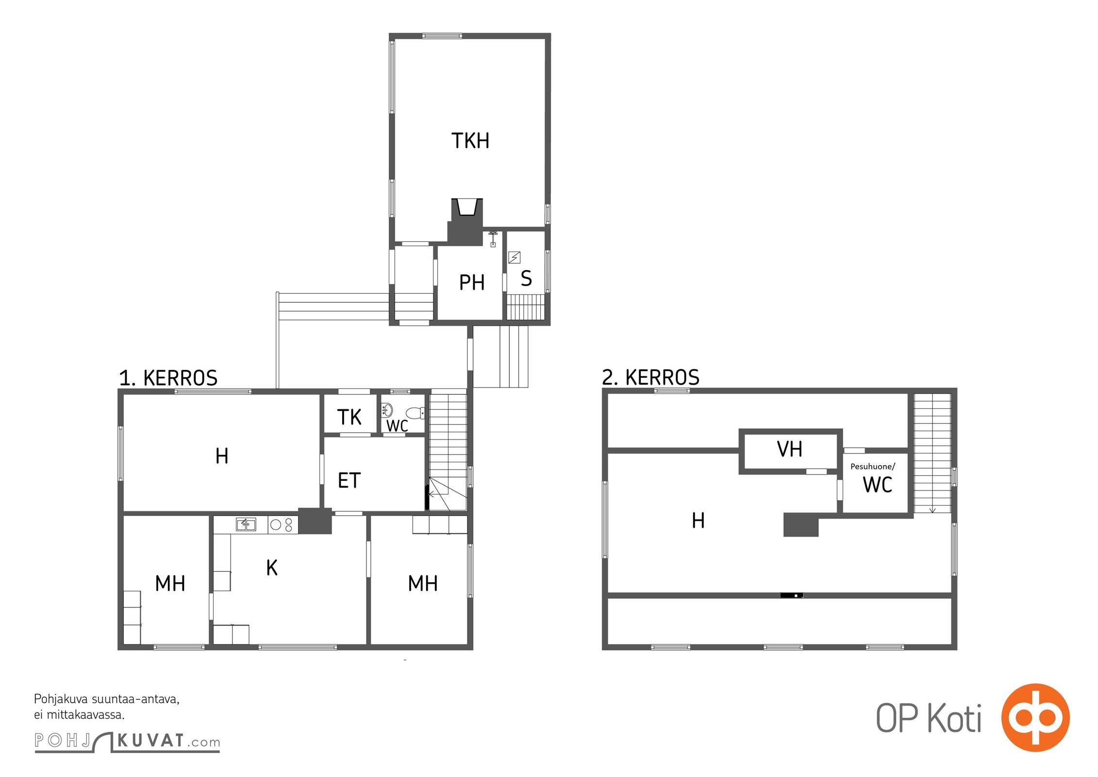
Talon ensimmäisessä kerroksessa sijaitsevat olohuone ja keittiö, joka vaatii pientä remonttia. Keittiössä on kaikki tarvittava arjen ruoanlaittoon, ja takkahuone tarjoaa viihtyisän tilan rentoutumiselle. Yläkerrassa on yksi isohuone ja pesutilat, remontti on vielä kesken, mutta mahdollistaa tilojen räätälöinnin omiin tarpeisiin. Sauna ja kylpyhuone tuovat arkeen ripauksen rentoutumista. Lisäksi siipiosan alakerrassa on iso autotalli/verstatila.
Uudenkaupungin keskustan palveluihin on n. 1,5 km. Pietolan alue on rauhallinen ja vehreä, mikä tekee siitä ihanteellisen paikan perheille ja rauhallista asumista arvostaville.
Talo on käyttöönotettu 1960 ja sen kunto on tyydyttävä. Viime vuosina taloon on tehty merkittäviä teknisiä päivityksiä, kuten ikkunoiden uusiminen ja lämmitysjärjestelmän modernisointi vesi-ilmalämpöpumpulla. Salaojat ja patolevyt on uusittu vuonna 2018, mikä tuo varmuutta talon rakenteisiin. Tämä koti tarjoaa mahdollisuuden muokata tiloja omien tarpeiden mukaan ja tehdä siitä juuri omaan makuun sopiva.
Olet lämpimästi tervetullut tutustumaan tähän kohteeseen. Sovi esittely välittäjän kanssa, autan myös oman kotisi myynnissä.
Jyrki Isotupa, puh. 0500 941210 tai jyrki.isotupa@op.fi
Kohdetta välittää:
Ota yhteyttä välittäjään
Lähettämällä viestin hyväksyt palvelun ehdot.
Kohteen tiedot
Perustiedot
- Kohdenumero
- 608648
- Kohdetyyppi
- Omakotitalo
- Osoite
- Häpönniementie 7, 23500 UUSIKAUPUNKI
- Omistusmuoto
- Omistus
- Huoneluku
- 5
- Huoneet
- 5h + k + 2 kph + s + 2 wc + vh + at/varasto
- Asuinpinta-ala
- 155 m2Uudenkaupungin kaupungin rakennusviranomaisilta ei ole saatavilla rakennuslupapiirustuksia. Rakennuksen pinta-ala tiedot perustuvat Uudenkaupungin kaupungin epäviralliseen Rakennus- ja huoneistorekisteriotteen tietoihin. Arvioitu asuintilojen pinta-ala on rakennus- ja huoneistorekisteriotteen mukainen 155 m2 sisältäen keskikerroksen kaksi makuuhuonetta olohuoneen, keittiön, eteisen, wc:n, takkahuoneen, kylpyhuoneen, saunan ja yläkerran saneerauksessa olevan yhden huoneen sekä yläkerran kylpyhuoneen/wc:n ja vaatehuoneen.
- Kokonaispinta-ala
- 191 m2
- Muu ala
- 36 m2Autotalli/vestas.
- Käyttöönottovuosi
- 1960
- Yleiskunto
- Tyydyttävä
- Kerros
- Sauna
- Kyllä
- Vapautuminen
- Heti
Hintatiedot
- Myyntihinta
- 70 000,00 €
- Velaton hinta
- 70 000,00 €
- Lainaosuus
- 0,00 €
- Neliöhinta
- 451,61 €
- Kiinteistövero
- 320 €
Sähkö: 1200 € 16000 kWh/v. Kiinteistövero: 320 €. . Sähkö ja vesi kulutuksen mukaan. Kokonaissähkönkulutuskustannus noin 166 euroa/kk on viimeisen 12 kk:n keskimääräinen kustannus, sisältäen sähköenergiamaksut perusmaksuineen ja sähkönsiirtomaksut perusmaksuineen sekä sähköveron. Vuotuinen sähkönkulutus on nykyisillä asukkailla 12 kk:n aikana ollut noin 16000 kWh sisältäen lämmitys- ja taloussähkön. Sähkönkulutus on suuresti riippuvainen muun muassa lämmityskauden pituudesta ja keskilämpötilasta, asunnon sisälämpötilasta, perheen koosta, kulutustottumuksista sekä sähkölaitteiden kunnosta, iästä ja energiatehokkuudesta.
Osuuspankin lainalaskuri
Lainasi kuukausierä olisi 295 € kuukaudessa
Varustus
- Keittiö
- Jääkaappipakastin, sähköliesi, astianpesukone, kaapistot. Keittiössä ollut pieni tulipalo, vaatii remontoinnin.
- Pesutilat
- Sauna, sähkökiuas, kylpyhuone, erillinen wc, suihku, peilit, pesukoneliitäntä takkahuoneessa.
- Säilytystilat
- Kellari
Materiaalit
- Keittiö: lattia laminaattia, seinät maalattu. Olohuone: lattia parkettia, seinät tapetoitu. Makuuhuone 1: lattia laminaattia, seinät maalattu/tapetoitu. Makuuhuone 2: lattia muovimatto, seinät tapetoitu. Sauna: lattia laatta, seinät paneli. Kylpyhuone: lattia laatta, seinät laatta/paneli. Eteinen: lattia muovimatto, seinät maalattu. Wc: lattia muovimatto, seinät laatta/maali. Takkahuone: lattia parketti, seinät maalattu.
Rakennuksen tiedot
- Rakennusmateriaali
- Puu
- Kattotyyppi
- Harja
- Kattomateriaali
- Pelti
- Lämmitysjärjestelmä
- Muu. Vesi-ilmalämpöpumppu lämmittää patteriverkoston, lisäämällä varaajan voidaan lämmittää myös käyttövesi. Tällä hetkellä käyttövesi lämmitetään sähköllä. Mahdollisuus myös öljylämmitykseen.,Öljysäiliön sijainti: rappujen alla bunkkerissa,Öljysäiliö tarkastettu:ei.
- Lämmönjakojärjestelmä
- Vesikiertoinen patterilämmitys. Vesi-ilmalämpöpumppu.
- Ilmanvaihtojärjestelmä
- Painovoimainen
- Energialuokka
- Ei energiatodistusta
- Lisätietoa energiatodistuksesta
- Kohteella ei ole lain edellyttämää energiatodistusta ja sen vuoksi energialuokka ei ole tiedossa
Tehdyt korjaukset
Ikkunat uusittu 2018. Osa lämmitys- ja käyttövesiputkistoista uusittu 2017. Vesi-ilmalämpöpumppu 2018
Tontti ja kaavoitus
- Tontin pinta-ala
- 1 294 m2
- Omistus
- Vuokrattu
- Vuokralleantaja
- Uudenkapungin kaupunki
- Tontin vuokra-aika
- Vuokrasopimus päättyy 31.12.2055
- Tie perille
- Kyllä
- Kaavoitus
- Asemakaava (sitova tonttijako), Rakennuslupa 1960. Kaavamerkintä AO-16, erillispientalojen korttelialue, tehokkuusluku e=0,25 Uudenkaupungin kaupunki
- Rakennusoikeus
- 323 m2
Vesi ja viemäröinti
- Vesijohto
- Kyllä
- Käyttövesi
- Kunnan.
- Viemäri
- Kyllä
- Jätevesihuolto
- Kunnan.
Palvelut ja liikenneyhteydet
Palvelut: Keskustan palvelut (toirlle) n.1,5 km. Koulut: Kaikki koulut n. 1,5-2 km. Päiväkoti: n. 1,5 km. Liikenneyhteydet: Linja-autoasema n. 1,5 km
Lisätiedot
Ostajalle saattaa muodostua kuluja kaupanteosta, kuten esim. sähköisestä kiinteistökaupasta. Ostajan huomioitava mm. vuokra-oikeuden kirjaamiskulut, sähköisen kiinteistökaupan asiointimaksu sekä pankki saattaa veloittaa omien hinnastojensa mukaan erilaisia kaupankäyntikuluja. Ostaja maksaa varainsiirtoveron 3 %. Talon vesijärjestelmät on tyhjennetty, lämmitysjärjestelmä ei ole päällä, talo on tällä hetkellä kylmillään.
Asuntolaina –
Avain unelmiesi kotiin
Tutustu OP:n asuntolainaanHanki kotisi
kokoinen vakuutus
Tutustu Pohjola KotivakuutukseenPohja

Kuvat


































Sijainti
Kohdetta välittää
Uusikaupunki OP Koti Varsinais-Suomi Oy LKV
Rantakatu 27, UUSIKAUPUNKI
010 2569 118 Katso puheluhinnat
opkoti.varsinais-suomi@op.fi
Huomaathan, että OP Kodin kohdeilmoituksessa ei ole kaikkia tietoja kohteesta.
Varmista tiedot kohteen virallisesta myyntiesitteestä.