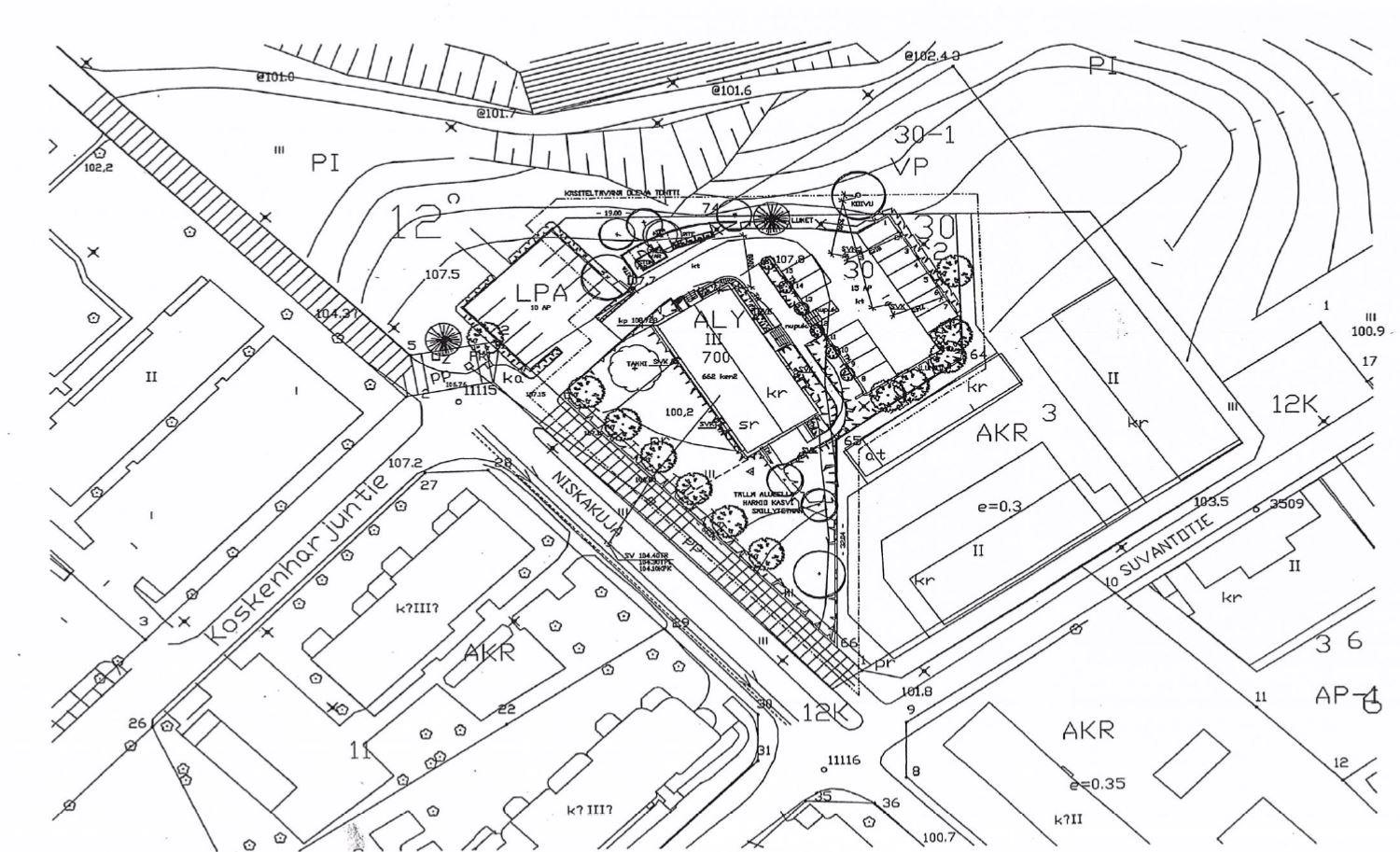
Niskakuja 4, Taulumäki, Jyväskylä
Velaton myyntihinta550 000 € Myyntihinta: 550 000 €
Pinta-ala
530 m2
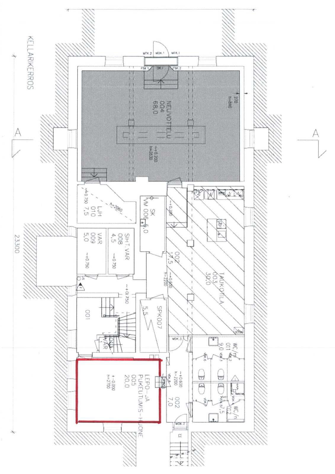
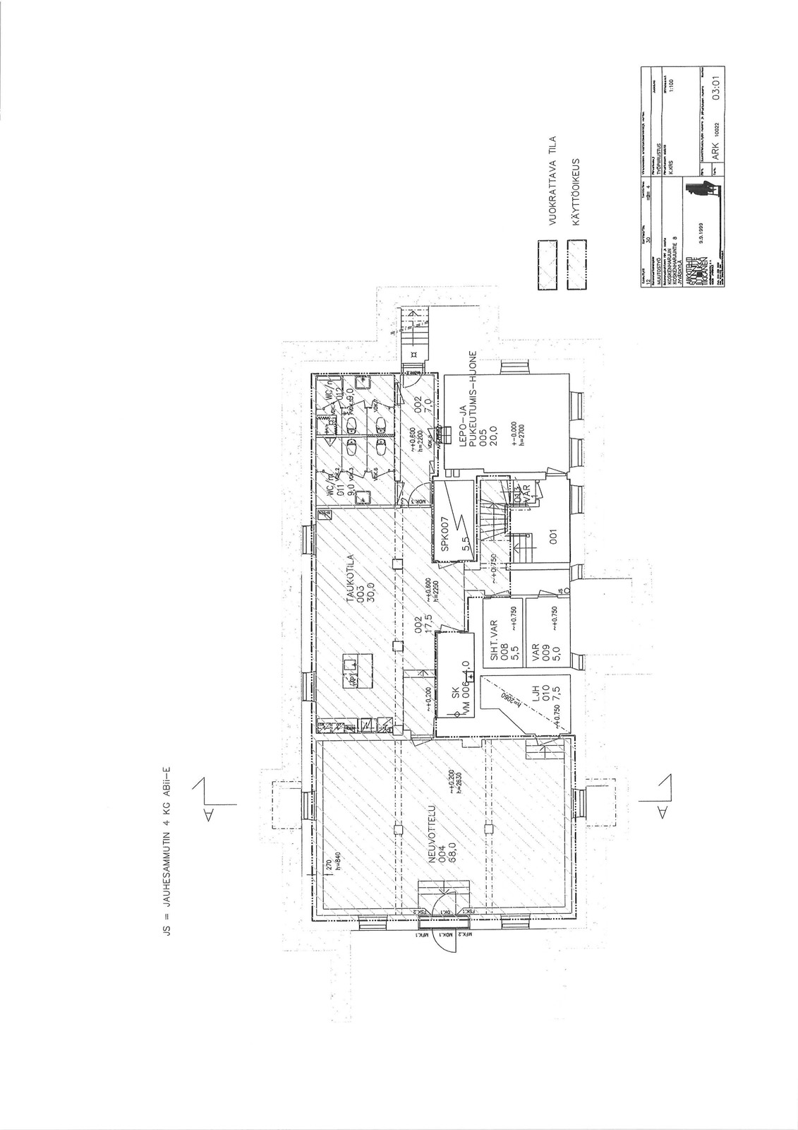
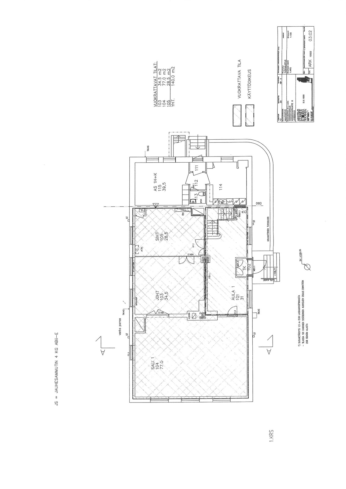
Koko rakennusPunatiilisessä saneeratussa rakennuksessa tyylikästä toimistotilaa jäähdytyksellä. 1.kerroksessa 138 m2. ja 2. krs 206 m2 Kellarikerroksessa väljät taukotilat ja erillinen 67 m2 toimisto omalla pihalla varustettuna. Tähän kannattaa tutustua! Vapautuu sopimuksen mukaan. Kysy tarkemmat vuokratiedot.
Kohdetta välittää:
Ota yhteyttä välittäjään
Viesti
Etunimi *
Sukunimi *
Sukunimi *
Puhelinnumero *
Sähköposti *
Lähettämällä viestin hyväksyt palvelun ehdot.
Kohteen tiedot
Perustiedot
- Kohdenumero
- 608219
- Kohdetyyppi
- Toimistotila
- Osoite
- Niskakuja 4, 40200 JYVÄSKYLÄ
- Huoneet
- Koko rakennus
- Kokonaispinta-ala
- 530 m2
- Vapautuminen
- Sopimuksen mukaan
Hinta ja ehdot
- Vuokra
- 5 000,00 €/kk
- Myyntihinta
- 550 000,00 €
- Velaton hinta
- 550 000,00 €
- Lainaosuus
- 0,00 €
Osuuspankin lainalaskuri
Euro
2 319 €/kk
Lainasi kuukausierä olisi 2 319 € kuukaudessa
Taloyhtiö
Rakennuksen tiedot
- Energialuokka
- Ei energiatodistusta
- Lisätietoa energiatodistuksesta
- Kohteella ei ole lain edellyttämää energiatodistusta ja sen vuoksi energialuokka ei ole tiedossa
Kuvat





























Sijainti
Powered by Esri
Kohdetta välittää
Jyväskylä OP Koti Keski-Suomi Oy LKV
Kauppakatu 22, JYVÄSKYLÄ
010 256 5950 Katso puheluhinnat
opkoti.keski-suomi@op.fi
Huomaathan, että OP Kodin kohdeilmoituksessa ei ole kaikkia tietoja kohteesta.
Varmista tiedot kohteen virallisesta myyntiesitteestä.
Hae asuntolainaaOsuuspankista!