Tuomisentie 3, Hakanpää, Ulvila
Tämä toimivapohjainen ja laajasti remontoitu paritalon puolikas tarjoaa erinomaiset puitteet sujuvaan arkeen. Kodissa on peräti neljä makuuhuonetta, joista yksi pienempi huone soveltuu erinomaisesti esimerkiksi työhuoneeksi, vierashuoneeksi tai pukeutumishuoneeksi.
Koti on valoisa ja avara ja sen sydämenä toimii olohuoneen ja keittiön muodostama yhtenäinen kokonaisuus. Olohuoneessa viihtyisyyttä ja lämpöä tuo varaava takka ja asumismukavuutta lisää ilmalämpöpumppu.
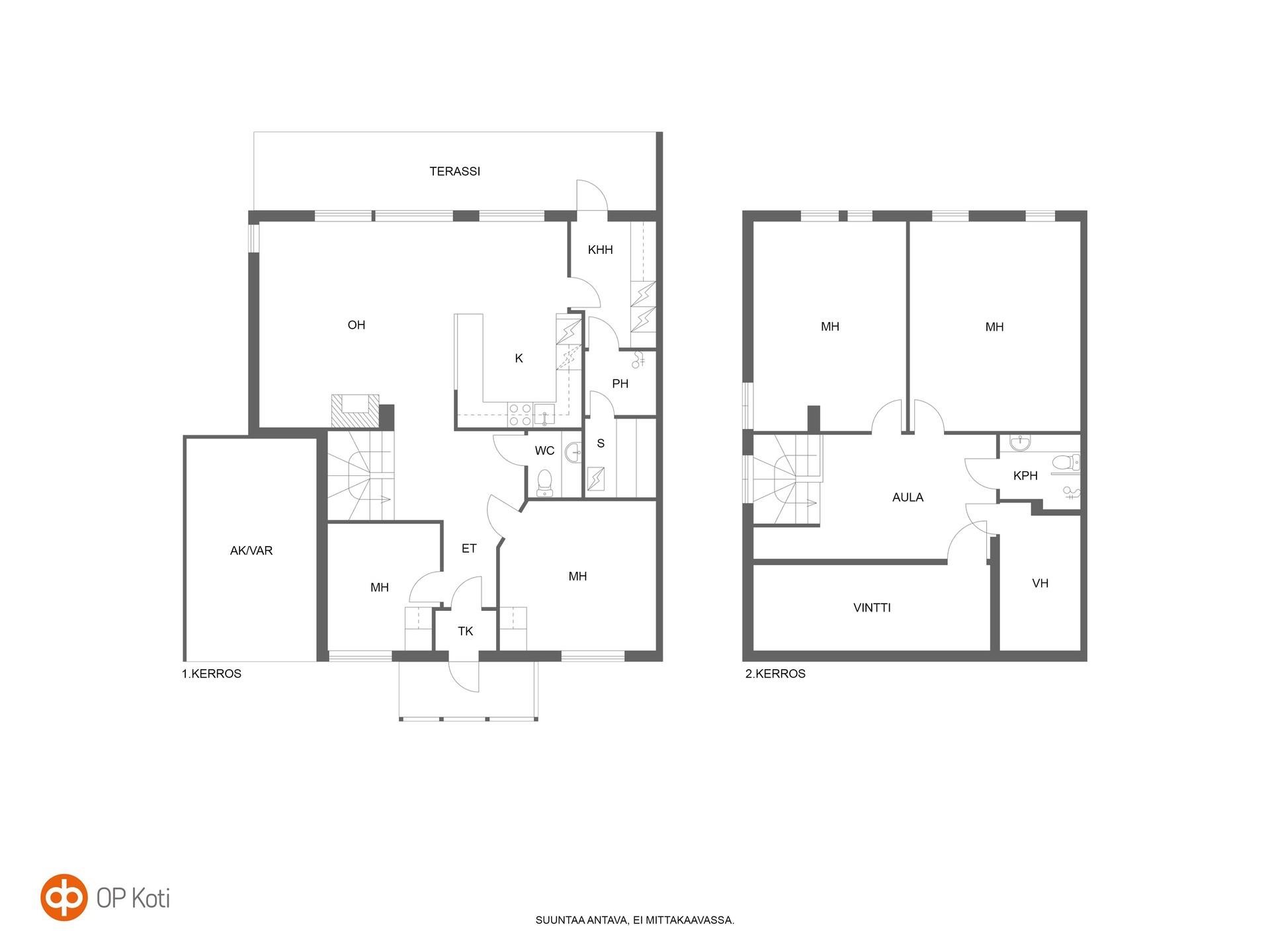
Alakerrassa sijaitsevat kaksi huonetta, olohuone ja keittiö, sekä kodinhoitohuone ja sauna. Yläkerrasta löytyvät kaksi tilavaa makuuhuonetta kylpyhuone sekä vaatehuone.
Suojaisa ja helppohoitoinen piha-alue täydentyy takapihan lasitetulla terassilla joka mahdollistaa ulkotilan käytön aikaisesta keväästä pitkälle syksyyn. Pihavarasto ja oma autokatos!
Sijainti on käytännöllinen ja rauhallinen. Poriin hurauttaa autolla noin kymmenessä minuutissa ja koululle kulkee turvallinen pyörätie aivan vierestä. Kokonaisuus on siisti ja muuttovalmis. Tässä on koti, johon on helppo ihastua!
Varaa oma esittelyaikasi minulta kristiina.palmen@op.fi 0409127902
Ota yhteyttä välittäjään
Lähettämällä viestin hyväksyt palvelun ehdot.
Kohteen tiedot
Perustiedot
- Kohdenumero
- 612231
- Kohdetyyppi
- Paritalo
- Osoite
- Tuomisentie 3, 28400 ULVILA
- Omistusmuoto
- Omistus
- Huoneluku
- 5
- Huoneet
- 5h + k + s + aula
- Asuinpinta-ala
- 133 m2alakerta: 2mh, oh, k, khh, kph+ erillinen wc. Yläkerta: 2mh,kph,vh+aula. Alakerta 84m2 ja yläkerta 49m2. Ulkovarasto 10m2 ja autokatos 15m2.
- Kokonaispinta-ala
- 158 m2
- Muu ala
- 25 m2
- Käyttöönottovuosi
- 1990
- Yleiskunto
- Hyvä
- Kerros
- Hissi
- Ei
- Sauna
- Kyllä
- Parveke
- Ei
- Ikkunat ja näköalat
- Länsi-piha.
- Vapautuminen
- sopimuksen mukaan
Hintatiedot
Hinta
- Velaton hinta
- 197 000,00 €
- Myyntihinta
- 190 515,50 €
- Lainaosuus
- 6 484,50 €
- Neliöhinta
- 1 481,20 €/m²
Kohde on yhtiölainoitettu - lainaosuus 6 484,50 €
Taloyhtiölainasta on vastuussa jokainen osakas. Jos lainaa koskevia pääomavastikkeita ei saada joidenkin asuntojen osalta muutoin perittyä, maksuvelvollisuus voi langeta viime kädessä muille osakkaille.
Vastikkeet
- Hoitovastike
- 120,00 €/kk
- Rahoitusvastike
- 80,00 €/kk
- Yhtiövastike yhteensä
- 200,00 €/kk
Muut maksut
Sähkölämmitys 14000 kWh/v, . Vesimaksun peruste: Maksu peritään todellisen kulutuksen mukaan huoneistokohtaisten mittarilukemien perusteella (4,54eur/m3) Vesimaksuennakko 20 eur/hlö. Sekajäte omalla sopimuksella, biojäte yhteinen.
Osuuspankin lainalaskuri
Lainasi kuukausierä olisi 831 € kuukaudessa
Varustus
- Keittiö
- Jääkaappi, pakastekaappi, induktioliesi, liesituuletin, astianpesukone, kaapistot, kiinteät valaisimet. Keittiö saneerattu vuonna 2022. Uusittu mm.kausteet (Ideal-keittiö) tiskikone, uuni, jääkaappi, pakastin ja astiapesukone. Keittiössä laminaattitasot.
- Pesutilat
- Sauna, sähkökiuas Lattiakiuas, kylpyhuone, erillinen wc, suihku, suihkuseinä, peilit, kaapit, allaskaappi, pesukoneliitäntä, lattialämmitys, kiinteät valaisimet. Kylpyhuone, khh ja sauna uusittu kokonaan vuonna 2022. Kiuas hieman vanhempi.
- Säilytystilat
- Vaatehuone, autokatoksessa varasto ja takapihalla ulkovarasto
Materiaalit
Keittiö: Laattalattia lattialämmityksellä. Kaakeliseinä, maalattu seinä.. Olohuone: Parketti, tapetti.. Kodinhoitohuone: Kaakeli. Sauna: Kaakelilattia, puu. Kylpyhuone: Kaakeli. Eteinen: Laatta, Lattialämmitys. Makuuhuoneet:: Parketti, tapetti.
Taloyhtiö
- Taloyhtiön nimi
- Asunto Oy Ulvilan Fransinpuisto
- Isännöitsijä
- Isännöitsijänä toimii hallituksen puheenjohtaja Kimmo Siirtola. p. 0449785185, kimmo.siirtola@gmail.com
- Kiinteistönhuolto
- Osakkaat
- Asuinhuoneistoja
- 4
- Taloyhtiössä on
- Kaapeli-TV
Rakennuksen tiedot
- Rakennusmateriaali
- Puu. /tiili.
- Kattotyyppi
- Harja
- Kattomateriaali
- Tiili
- Lämmitysjärjestelmä
- Sähkö. Sähkölämmitys, ilmalämpöpumppu ja varaava takka.
- Lämmönjakojärjestelmä
- Sähköpatterilämmitys
- Ilmanvaihtojärjestelmä
- Koneellinen poisto
- Energialuokka
- Ei energiatodistusta
- Lisätietoa energiatodistuksesta
- Kohteella ei ole lain edellyttämää energiatodistusta ja sen vuoksi energialuokka ei ole tiedossa
Tehdyt korjaukset
2002:uusittu salaojat ja sadevesiviemäröinti. Sokkelin kunnostusta ja piha-aitojen maalausta. 2025: Tiilikaton puhdistus ja maalaus. Rännien uusinta. Tikkaiden krjaustoimenpiteet Kattoikkunat uusittu Huoltomaalauksia tehty tarpeen mukaan.. Asunnon remontit: 2021-2022: Keittiö, kodinhoitohuone, pesutilat ja sauna remontoitu kokonaisuudessaan. Kaikki seinäpinnat käyty läpi pintaremontin yhteydessä. 2022: Lämminvesivaraaja uusittu. Pienen makuuhuoneen kaapit, sekä yläkerran makuuhuoneen peilikaapit uusittu.(Idealkeittiö) Ulko-ovi uusittu, Pihla Termo-ovi. 2025: Kattoikkuna uusittu.
Tontti ja kaavoitus
- Tontin pinta-ala
- 2 289 m2
- Omistus
- Oma
- Kaavoitus
- Asemakaava.
Palvelut ja liikenneyhteydet
Koulut: Turvallinen pyörätie Fritalan koulukeskukseen. Massinmajan ulkoilualue noin 4km päässä. Liikenneyhteydet: Porin keskustaan on noin 10 min ajomatka. Bussipysäkille n. 250m.
Asuntolaina –
Avain unelmiesi kotiin
Tutustu OP:n asuntolainaanHanki kotisi
kokoinen vakuutus
Tutustu Pohjola KotivakuutukseenPohja

Kuvat



























Sijainti
Kohdetta välittää
Pori OP Koti Länsi-Suomi Oy Mikonkatu 4, PORI
010 25 70700 Katso puheluhinnat
opkoti.lansi-suomi@op.fi
Huomaathan, että OP Kodin kohdeilmoituksessa ei ole kaikkia tietoja kohteesta.
Varmista tiedot kohteen virallisesta myyntiesitteestä.