Torvensoittajankatu 3, Alakaupunki, Hamina
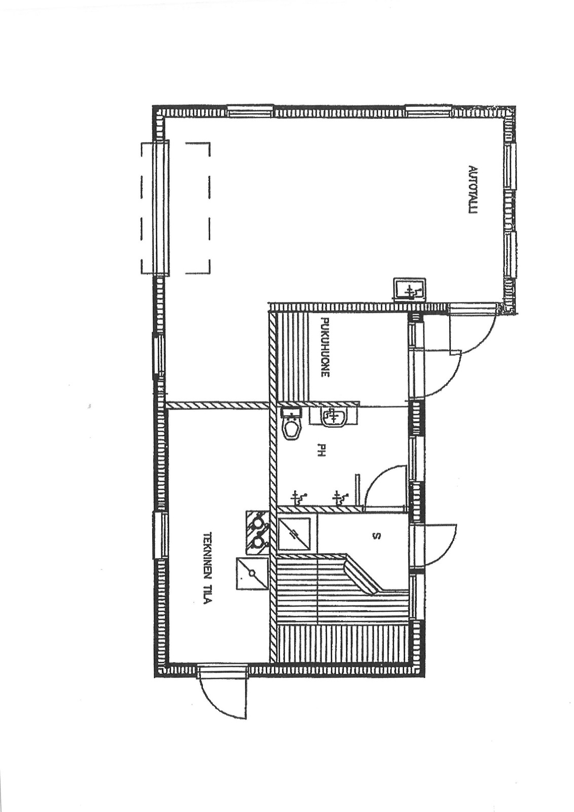
Uniikki, vuonna 2022 valmistunut ok-talo hyvällä paikalla. Upea tupakeittiö, jossa reilu huonekorkeus luo avaruutta. Keittiössä on ihanat ja kestävät kivitasot. Lämpöä ja tunnelmaa on luomassa kaunis varaava takka. Alakerran kahden makuuhuoneen lisäksi noin 20 m2 parvella on lisää nukkumatilaa. Päärakennuksessa sijaitsee wc / kylpyhuone ja tyylikkäät saunatilat sijaitsevat ulkorakennuksessa. Päärakennuksen ja ulkorakennuksen yhdistää laaja terassialue ja kokonaisuuden kruunaa uima-allas. Tontin pinta-ala on 1627 m2 ja kiinteistöllä on vielä myös runsaasti rakennusoikeutta jäljellä.
Ota yhteyttä välittäjään
Lähettämällä viestin hyväksyt palvelun ehdot.
Kohteen tiedot
Perustiedot
- Kohdenumero
- 591523
- Kohdetyyppi
- Omakotitalo
- Osoite
- Torvensoittajankatu 3, 49400 HAMINA
- Omistusmuoto
- Omistus
- Huoneluku
- 2
- Huoneet
- 2 mh, tupak, kph, eteinen
- Asuinpinta-ala
- 88 m2
- Kokonaispinta-ala
- 103 m2
- Muu ala
- 15 m2lisäksi parvi noin 20 m2
- Käyttöönottovuosi
- 2022
- Yleiskunto
- Hyvä
- Kerros
- Sauna
- Kyllä
- Vapautuminen
- sopimuksen mukaan
Hintatiedot
Hinta
- Velaton hinta
- 269 000,00 €
- Myyntihinta
- 269 000,00 €
- Lainaosuus
- 0,00 €
Muut maksut
- Kiinteistövero
- 818,22 eur vuosi
Sähkö: sís lämmitys ja taloussähkö 12550 kWh/v. Vesi ja jätevesi: kulutuksen mukaan. Puhtaanapito: noin 8 eur / kerta + mahd bio + vuosimaksu. Kiinteistövero: 818,22 eur vuosi. .
Osuuspankin lainalaskuri
Lainasi kuukausierä olisi 1 134 € kuukaudessa
Varustus
- Keittiö
- Jääkaappipakastin, erillisuuni, induktioliesi, liesituuletin, astianpesukone, kaapistot, irralliset kaapistot, pöytätasojen materiaali kivitasot.
- Pesutilat
- Sauna sauna ulkorakennuksessa, puukiuas, kylpyhuone päärakennuksessa sekä talousrakennuksessa, erillinen wc päärakennuksessa sekä talousrakennuksessa, suihku tuplasuihkut, peilit, pesukoneliitäntä kph:ssa, lattialämmitys kaikki tilat, kiinteät valaisimet.
Materiaalit
Keittiö: seinät tapetoitu / maalattu, lattia vinyylilankku. Olohuone: seinät tapetoitu / maalattu, lattia vinyylilankku. Makuuhuone 1: seinät tapetoitu / maalattu, lattia vinyylilankku. Makuuhuone 2: seinät tapetoitu / maalattu, lattia vinyylilankku. Kylpyhuone: laatoitettu. Parvi: seinät tapetoitu / maalattu, lattia vinyylilankku.
Rakennuksen tiedot
- Rakennusmateriaali
- Puu
- Kattotyyppi
- Harja
- Kattomateriaali
- Pelti. Konesaumattu peltikate.
- Lämmitysjärjestelmä
- Muu. Ulkorakennuksessa varalla varaava puukattila, jonka voi kytkeä vesi-ilmalämpöpumpun rinnalle/tilalle.
- Lämmönjakojärjestelmä
- Lattialämmitys vesi. Vesikiertoinen lattialämmitys myös ulkorakennuksessa.
- Ilmanvaihtojärjestelmä
- Lämmön talteenotto
- Energialuokka
- B 2018
Tontti ja kaavoitus
- Tontin pinta-ala
- 1 627 m2
- Omistus
- Oma
- Tie perille
- Kyllä
- Kaavoitus
- Asemakaava (sitova tonttijako), Rakennuslupa 2013 / 2021. Haminan kaupunki
- Rakennusoikeus
- 720 m2
Vesi ja viemäröinti
- Vesijohto
- Kyllä
- Käyttövesi
- Kunnan.
- Viemäri
- Kyllä
- Jätevesihuolto
- Kunnan.
Asuntolaina –
Avain unelmiesi kotiin
Tutustu OP:n asuntolainaanHanki kotisi
kokoinen vakuutus
Tutustu Pohjola KotivakuutukseenPohja

Kuvat






























Sijainti
Kohdetta välittää
Hamina OP Koti Kaakkois-Suomi Oy LKV Puistokatu 6, HAMINA
010 257 7470 Katso puheluhinnat
opkoti.kaakkois-suomi@op.fi
Huomaathan, että OP Kodin kohdeilmoituksessa ei ole kaikkia tietoja kohteesta.
Varmista tiedot kohteen virallisesta myyntiesitteestä.